ALLPLAN 2026 ile Yeni Özellikler – ALLPLAN Cloud ve Genel Geliştirmeler
DAHA İYİ BİR GELECEK İNŞA ETMEK İÇİN TASARLANDI
Genel Ana Özellikler ve Tüm Kullanıcılar için Geliştirmeler

Çok Harfli Klavye Kısayolları Desteği
Daha hızlı komutlar ve daha akıllı iş akışları parmaklarınızın ucunda
- ALLPLAN 2026, son derece esnek ve özelleştirilebilir bir kısayol sistemi sunar; bu sistem, sektördeki standartlarla eşleşir veya onları aşar ve kullanıcıların kısayol odaklı, ultra verimli iş akışları oluşturmasını sağlar.
- Bu iyileştirmeler sayesinde, kullanıcılar herhangi bir araca veya komuta saniyeler içinde erişebilir, günlük üretkenlikte önemli bir artış sağlar.

Yeni Grafik Geçersiz Kılma
Daha hızlı ve yaratıcı BIM iş akışları için görsel kuralları zahmetsizce uygulayın
- ALLPLAN 2026'daki Yeni Graphic Override özelliği, planlayıcılara çizim ve modellerin görünümünü anında kontrol etme olanağı sağlar.
- Renkler, dolgular, çizgi tipleri, desenler ve diğer özellikler için kurallar, bireysel eleman niteliklerini değiştirmeden Graphic Override Manager üzerinden kolayca tanımlanabilir.
- Grafik geçersiz kılma setleri, inşaat veya düzenleme modunda anında uygulanabilir, böylece tasarımınızı hızlıca görselleştirebilir, kontrol edebilir ve paylaşabilirsiniz.
- Bu esnek, kural tabanlı yaklaşım, plan üretimini hızlandırır, zamandan tasarruf sağlar ve daha verimli ve yaratıcı BIM iş akışlarına olanak tanır.

Karanlık Mod
Aydınlatma ne olursa olsun zahmetsiz konfor ve netlik
- Modern ve konforlu bir çalışma alanı için artan beklentilerle birlikte, kullanıcıların gece gündüz üretken kalabilmeleri için esnek arayüz seçeneklerine ihtiyaçları vardır. ALLPLAN 2026, yepyeni bir karanlık mod ve yenilenmiş bir aydınlık mod sunarak, özellikle yoğun veya uzun süreli modelleme oturumlarında konforu ve üretkenliği artırır.
- Kullanıcılar, göz yorgunluğunu azaltmak, erişilebilirliği artırmak ve hatta OLED ekranlarda pil tasarrufu sağlamak için karanlık veya aydınlık mod arasında sorunsuz bir şekilde geçiş yapabilir, böylece özelleştirilebilir, geleceğe hazır bir ALLPLAN deneyimi sağlanır—hepsi tek bir sezgisel arayüzde.

Geliştirilmiş Çakışma Yönetimi
Daha iyi proje koordinasyonu için kolay çakışma tespiti ve hızlı çözüm
- ALLPLAN 2026, 3B modeldeki farklı elemanlar arasındaki çakışmaları tespit etme ve çözme sürecini kolaylaştırır.
- Geliştirilmiş Çakışma Yönetimi ile ALLPLAN artık niteliklerle dolu bilgilendirici çakışma makroları, gelişmiş çakışma filtreleri ve mevcut çakışmaları güncelleme yeteneği sunar.
- Ekipler, koordinasyon üzerinde tam kontrol sahibi olabilir. Yenilikler ayrıca sert ve yumuşak çakışmaların (boşluklar dahil) hedeflenmiş filtrelerle kolayca kontrol edilmesini ve çakışma makrolarının bilgi paletine anında aktarılabilmesini sağlar.
- Sonuç: daha az maliyetli yeniden işleme, daha yüksek kaliteli yapılar ve daha uzun ömürlü projeler, tüm bunlar ALLPLAN'da daha akıcı inşaat süreçleri ile gerçekleştirilir.

Geliştirilmiş Bilgi Paleti
Daha akıllı ve hızlı proje yönetimi için kolay organizasyon ve kontrol
- ALLPLAN 2026, tamamen yenilenmiş bir Bilgi Paleti sunar. Bu yeni sürüm, gelişmiş özellikler içerir:
- Esnek gruplama, Otomatik toplam hesaplama, IDS doğrulama, Katalog entegrasyonu
- İyileştirilmiş gezinme, Gelişmiş sıralama ve filtreleme
- Daha sezgisel bir kullanıcı deneyimi için yeniden tasarlanmış arayüz
- Akıcı iş akışları için performans optimizasyonları
- Bu güçlü araçlar sayesinde kullanıcılar, bilgileri hızlıca organize edebilir, bulabilir ve güncelleyebilir, böylece arama süresini azaltır ve verimliliği artırır. Sonuç: daha güvenilir planlama, daha hızlı proje teslimi ve yaratıcı işlere daha fazla zaman.

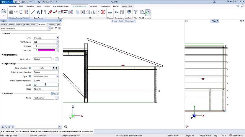
Geliştirilmiş Yapısal Çerçeveleme
Çerçeveleme düzenlerini hızlıca modelleyin ve güncelleyin
- Yeni kiriş ve çıta yerleştirme araçları, önceden tasarlanmış binaları daha hızlı modellemenizi ve çerçeveleme düzenlerini çatı geometrisi değiştikçe kolayca uyarlamanızı sağlar.
- Geliştirilmiş hizalama seçenekleri, çelik elemanların ilk seferde doğru yerleştirilmesini sağlayarak bağlantı hatalarını azaltır.

Yapısal Çerçeveleme Montajları
Bağlantıları otomatik olarak doğru tutun
- ALLPLAN 2026, bağlantı hatalarını düzeltmek için harcanan zamanı ortadan kaldırır.
- Yeni işlevsellik sayesinde bağlantılar otomatik olarak uygulanır ve güncellenir, böylece çelik montajlar tasarım değişiklikleri sırasında her zaman doğru ve geçerli kalır.
ALLPLAN Cloud

Yapay Zeka Asistanı
AEC Yenilikleri için Uzman Yol Arkadaşınız
- Connect platformu üzerinden sunulan AI Assistant, ALLPLAN yazılım çözümleri (ALLPLAN, SCIA, FRILO, SDS2 ve BIMPLUS) ile çalışma şeklinizi dönüştürmek için tasarlanmış yenilikçi bir araçtır. Mimarlık, mühendislik, üretim ve iş birliği alanlarında uzmanlığı ile, bu akıllı asistan platformun tüm alanlarında kapsamlı destek sağlar.
- ALLPLAN'a özgü konuların ötesinde, AI Assistant geniş AEC endüstri standartları ve en iyi uygulamalar hakkında da değerli bir kaynak sunar; süreçleri hızlandırmanıza ve bilinçli kararlar almanıza yardımcı olur.
- İnşaat standartlarıyla ilgili rehberlik, Oda planlaması için akıllı öneriler, Projeleriniz için detaylı kod uzantıları geliştirme desteği gibi ihtiyaçlarınızda pratik çözümler sağlar.
- Her zaman erişilebilir ve birden fazla dilde kullanılabilir, böylece uzman desteğine her zaman ulaşabilirsiniz.
- AI Assistant, abonelikli müşteriler için önizleme sürümü olarak sunulacaktır. Bu sadece bir araç değil; AEC iş akışlarınızda verimliliği artıran ve yeni olanaklar açan güvenilir bir iş ortağıdır.

Kaplamalar – 2D Belge Kırpma
3B koordinasyon için daha net ve hızlı odaklanma – 2B düzenlerde önemli detaylara kolayca odaklanın
- ALLPLAN'daki yeni kırpma kutusu özelliği, kullanıcıların 2B düzenleri 3B modellerle birleştirirken yalnızca ihtiyaç duydukları içeriği izole etmesini sağlar.
- 2B düzen içinde görünür alanı doğrudan tanımlayıp ayarlayabilir, İlgisiz görünümler, başlıklar veya ekstra bilgiler dışlanabilir, Yalnızca temel detaylar gösterilir.
- Sezgisel boyutlandırma ve Geri Al / Yinele (Undo/Redo) işlevleri sayesinde: İncelemeler hızlanır, Görsel karmaşa azalır, Netlik artar.
- Bu özellik, mimarlar ve mühendisler için koordinasyonu hızlandırır, iletişimi daha açık hale getirir ve sunumları daha etkili kılar.

ALLPLAN Model Görüntüleyici
Ücretsiz, Hızlı ve Her Yerden Erişilebilir – Tarayıcınızda anında model görselleştirme
- Ücretsiz ve bağımsız Model Viewer, herkese tarayıcı tabanlı IFC görselleştirme olanağı sunar.
- modelviewer.allplan.com üzerinden erişilebilir
- Modelleri hızlıca önizleyebilir ve etkileşimde bulunabilirsiniz
Daha Akıllı İş Birliği – SCIA Engineer için Geliştirilmiş Model Yönetimi ve Takım Çalışması
Mühendislik ekiplerinin tasarımları koordine etmesi ve ilerlemeyi paylaşması için daha akıllı bir yöntem
- SCIA Engineer'daki en son geliştirmelerle, ekipler artık tek bir paylaşılan yapısal model üzerinden iş birliği yapabilir.
- Mühendisler değişiklikleri izleyebilir, Disiplinler arası daha verimli koordinasyon sağlanır, Herkes en güncel tasarım verisiyle çalışır.
- Bu bağlı iş akışı, hataları azaltır, proje teslimatını hızlandırır ve ekiplerin müşterilere daha iyi sonuçlar sunmaya odaklanmasını sağlar.

ALLPLAN-Bluebeam Bağlantı Uzantısı
2B ve 3B belgelerin dijital aktarımı için stabil iş akışı
- Bluebeam ve ALLPLAN, kullanıcılarına iş birliğine dayalı araçlar sunar. ALLPLAN 2026 sürümü, iki araç arasında güçlü bir iş akışı sunarak, kullanıcıların Bluebeam Studio Project ortamındaki belgeleri kolayca ALLPLAN iş akışlarına dahil etmesini sağlar.
- Bu özellik, kullanıcıya farklı proje aşamalarında teslimatlar için dijital bir ortam sağlar
- 3B ve 2B verilerin senkronizasyonu ve proje paydaşlarıyla veri değişimi mümkün olur
- Artık Bluebeam EU Server için kullanılabilir.
