DAHA İYİ BİR GELECEK İNŞA ETMEK İÇİN TASARLANDI
Mimarlar, mühendisler, üreticiler ve inşaat profesyonelleri için verimlilik ve iş birliğini yeniden tanımlıyor. ALLPLAN 2026 ürün sürümleri, modernizasyon, otomasyon ve entegrasyon odaklı yaklaşımıyla, AEC (Mimarlık, Mühendislik ve İnşaat) sektörünün değişen ihtiyaçlarına güçlü yanıtlar veriyor.

/ GENEL BAKIŞ
NEDEN ALLPLAN 2026?
ALLPLAN çözümleri, bina ve altyapı modelleme, tasarım, detaylandırma ve üretimden inşaata kadar uçtan uca iş birliğine dayalı bir çalışma akışı sağlıyor. Yeni geliştirmeler; projelerinizi hızlandırır, doğruluğu artırır, yenilik ve sürdürülebilirliği teşvik eder ve ekiplerin tüm proje yaşam döngüsü boyunca çevik ve uyumlu çalışmasını güvence altına alır.
Mimarlar, mühendisler, üreticiler ve inşaat profesyonelleri için verimlilik ve iş birliğini yeniden tanımlıyor
ALLPLAN 2026 ürün sürümleri, modernizasyon, otomasyon ve entegrasyon odaklı yaklaşımıyla, AEC (Mimarlık, Mühendislik ve İnşaat) sektörünün değişen ihtiyaçlarına güçlü yanıtlar veriyor. Bu yeni sürümler; gelişmiş araçlar, kesintisiz süreçler ve ileri düzey birlikte çalışabilirlik sunarak üretkenliği yeni bir seviyeye taşıyor.
ALLPLAN çözümleri, bina ve altyapı modelleme, tasarım, detaylandırma ve üretimden inşaata kadar uçtan uca iş birliğine dayalı bir çalışma akışı sağlıyor. Yeni geliştirmeler; projelerinizi hızlandırır, doğruluğu artırır, yenilik ve sürdürülebilirliği teşvik eder ve ekiplerin tüm proje yaşam döngüsü boyunca çevik ve uyumlu çalışmasını güvence altına alır.
ANA FAYDALAR
- Akıllı bulut tabanlı iş birliği ile tüm proje yaşam döngüsü boyunca koordinasyon
- Disiplinler arası üstün birlikte çalışabilirlik, tasarımdan mühendislik iş akışlarına kesintisiz entegrasyon
- Gelişmiş otomasyon ve doğruluk ile sağlam modelleme süreçleri
- Yenilikçi ve sürdürülebilir projeler, daha düşük çevresel etki
- Ölçeklenebilirlik ve esneklik, ekiplerin çevik ve hızlı yanıt verebilmesini garanti eder
ALLPLAN 2026 – ANA ÖZELLİKLER VE GELİŞTİRMELER

Dahil Olduğu Paket: #Concept
Geliştirilmiş Serbest Şekilli Merdiven Modelleyicisi
Eşsiz, standartlara uygun merdivenleri benzersiz esneklik ve kolaylıkla tasarlayın

Dahil Olduğu Paket: #Concept
Gelişmiş Çok Katmanlı Döşeme Yönetimi
Modern ve sürdürülebilir yapı tasarımı için daha fazla esneklik ve hassasiyet

Dahil Olduğu Paket: #Concept
BIM'e Uyumlu Oda ve Kaplama Detaylandırması
Daha doğru, hızlı ve kolay

Dahil Olduğu Paket: #Concept
Özel Bileşenler: Hakimiyete Bağlı
Daha akıllı ve kaliteli BIM modelleri için kesintisiz etkileşim ve otomasyon

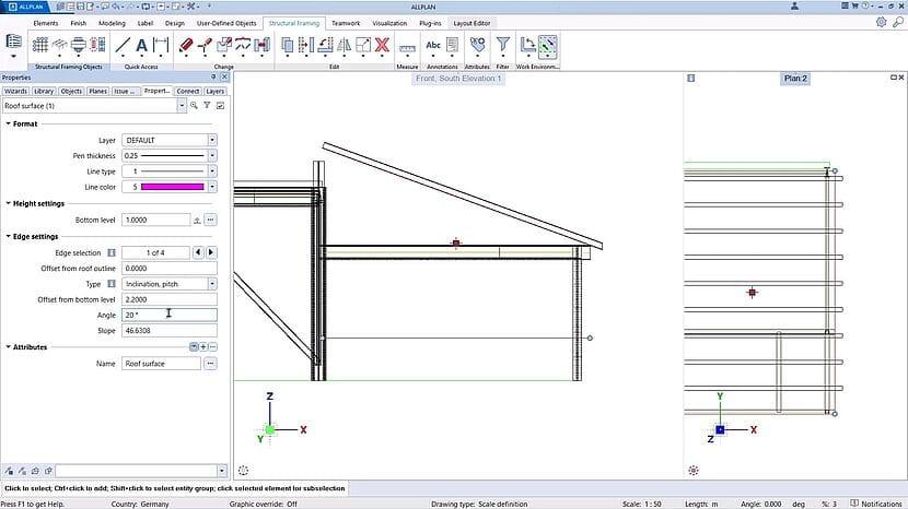
Dahil Olduğu Paket: #Professional
Geliştirilmiş Strüktürel Çerçeveleme
Çerçeve paftalarını hızla modelleyin ve güncelleyin

Dahil Olduğu Paket: #Professional
Strüktürel Çerçeveleme Bağlantıları
Bağlantıları doğru şekilde koruyun, otomatik olarak

Dahil Olduğu Paket: #Concept