Subscription 2026

Şimdi Aboneliğe Geçmek
Uzun Vadeli Akıllı Bir Yatırımdır

ALLPLAN 2026

DAHA İYİ BİR GELECEK İNŞA ETMEK İÇİN TASARLANDI

Yenilikçi AEC iş akışları, otomasyon ve bulut tabanlı iş birliği ile daha başarılı projeler.

Mimarlar, mühendisler, üreticiler ve inşaat profesyonelleri için verimlilik ve iş birliğini yeniden tanımlıyor

ALLPLAN 2026 ürün sürümleri, modernizasyon, otomasyon ve entegrasyon odaklı yaklaşımıyla, AEC (Mimarlık, Mühendislik ve İnşaat) sektörünün değişen ihtiyaçlarına güçlü yanıtlar veriyor. Bu yeni sürümler; gelişmiş araçlar, kesintisiz süreçler ve ileri düzey birlikte çalışabilirlik sunarak üretkenliği yeni bir seviyeye taşıyor.

ALLPLAN çözümleri, bina ve altyapı modelleme, tasarım, detaylandırma ve üretimden inşaata kadar uçtan uca iş birliğine dayalı bir çalışma akışı sağlıyor. Yeni geliştirmeler; projelerinizi hızlandırır, doğruluğu artırır, yenilik ve sürdürülebilirliği teşvik eder ve ekiplerin tüm proje yaşam döngüsü boyunca çevik ve uyumlu çalışmasını güvence altına alır.

ANA FAYDALAR

ALLPLAN 2026 – ANA ÖZELLİKLER VE GELİŞTİRMELER

Dahil Olduğu Paket: #Concept

Geliştirilmiş Serbest Şekilli Merdiven Modelleyicisi Eşsiz, standartlara uygun merdivenleri benzersiz esneklik ve kolaylıkla tasarlayın

Öne çıkan tasarımlara artan talep ile birlikte, mimar ve planlamacıların özgün ve işlevsel merdivenler yaratmak için esnek araçlara ihtiyacı var. Serbest form merdivenler, sıradışı mekanlara mükemmel uyum sağlar ve her projeye daha fazla yaratıcı olasılık sunar. ALLPLAN 2026, özel ve alışılmışın dışında merdivenleri tasarlamayı kolaylaştıran esnek bir merdiven modelleyici sunar. Serbest Form Merdiven Modelleyici, ülke bazlı standartlara uygun olarak benzersiz veya karmaşık şekiller oluşturmanıza olanak tanır. Ayrıca merdivenin üst veya alt kısmında referans düzlemleri tanımlayarak, merdiven altına duvar veya oda eklemeyi daha hızlı hale getirebilirsiniz. Tek bir sezgisel araç içinde eşsiz esneklik ve verimlilikle, standartlara uygun ve dikkat çekici merdivenler tasarlayın.

Dahil Olduğu Paket: #Concept

Gelişmiş Çok Katmanlı Döşeme Yönetimi Modern ve sürdürülebilir yapı tasarımı için daha fazla esneklik ve hassasiyet

AEC (Mimarlık-Mühendislik-İnşaat) sektörü, modern ve sürdürülebilir binalar için çok katmanlı bileşenleri tasarlayıp yönetmenin verimli yollarına ihtiyaç duyar ve proje standartlarını her aşamada karşılamalıdır. ALLPLAN 2025, döşemeler için çok katmanlı destek ve detaylandırma ile uygulama planlama araçlarını tanıttı. ALLPLAN 2026 ile çok katmanlı döşeme ve temel döşemelerini tasarlamak artık her zamankinden daha sezgisel ve verimli. Son güncellemeler, mimar ve mühendislerin döşeme katmanlarının uzatma yönünü hassas şekilde kontrol etmesini ve yeni etkileşimli önizleme ile değişiklikleri anında görmesini sağlar. Temel döşemeler, zemin katmanları veya alt tabaka katmanları gibi karmaşık bileşenlerin modellenmesi artık kolay ve son derece hassastır. Bu geliştirmeler, proje iş akışlarını hızlandırır, hata olasılığını azaltır ve planlamadan inşa aşamasına kadar tutarlı, detaylı sonuçlar elde edilmesini sağlar.

Dahil Olduğu Paket: #Concept

BIM’e Uyumlu Oda ve Kaplama DetaylandırmasıDaha doğru, hızlı ve kolay

ALLPLAN 2026, kaplama modelleme için esnek, doğru ve verimli bir iş akışı sunarak BIM planlamasını önemli ölçüde geliştirir. Öne çıkan özellikler şunlardır: kural tabanlı dağıtımla birlikte gerçekçi geometriye sahip çok katmanlı dikey kaplamalar, ilişkili oda kaplamalarını organize etmek veya alternatif tasarımları desteklemek için yeni oda filtreleri, duvar gibi dikey kaplamaların plan görünümü, 3B süpürgelik modelleme ve katman yönetimi için geliştirilmiş bir arayüz. Bu iyileştirmeler, mimarların doğru 2D ve 3D planlar oluşturmasına, kaplamaları yönetmenin basitleşmesine, hata oranının azalmasına ve çeşitli proje tiplerine uyum sağlamasına yardımcı olur. Ayrıca optimize edilmiş hesaplama süreci, tasarım değişiklikleri yaparken ve karmaşık projeleri güncellerken zamandan tasarruf sağlar.

Dahil Olduğu Paket: #Concept

Özel Bileşenler: Hakimiyete Bağlı Daha akıllı ve kaliteli BIM modelleri için kesintisiz etkileşim ve otomasyon

ALLPLAN 2026, BIM modelinde öncelik tabanlı bağlantılara (PBC) sahip geliştirilmiş Özel Bileşen özelliğini tanıtır. Bu geliştirme, özel model öğeleri ile duvar, kolon, döşeme gibi yerel yapı bileşenleri veya diğer özel objeler arasında kesintisiz etkileşim sağlar. Planlamacılar artık karmaşık şekilleri daha doğru modelleyebilir, otomatik etkileşimler manuel çalışmayı azaltır ve hata riskini minimize eder. Bu geliştirmeler, iş akışlarını hızlandırır, daha kaliteli BIM modelleri sunar ve zorlu projelerde bile başarılı proje teslimini destekler.

Dahil Olduğu Paket: #Professional

Geliştirilmiş Strüktürel Çerçeveleme Çerçeve paftalarını hızla modelleyin ve güncelleyin

Yeni kiriş ve kiriş sistemlerini yerleştirme araçları, binaları daha hızlı modellemenizi ve çatı geometrisi değiştikçe çerçeve paftalarını uyarlamanızı sağlar. Geliştirilmiş yakalama seçenekleri, çelik elemanların ilk seferde doğru yerleştirilmesini sağlar ve bağlantı hatalarını azaltır.

Dahil Olduğu Paket: #Professional

Strüktürel Çerçeveleme Bağlantıları Bağlantıları doğru şekilde koruyun, otomatik olarak

Bağlantı hatalarını düzeltmek için zaman kaybetmeyin—ALLPLAN 2026’daki yeni işlevsellikle, bağlantılar otomatik olarak uygulanır ve güncellenir, böylece çelik montajlar tasarım değişikliklerinde bile doğru ve geçerli kalır.

Dahil Olduğu Paket: #Concept

Optimizasyonlu Duvar İş Akışları Modern, birleşik arayüz ile duvar tasarımını basitleştirin

ALLPLAN 2026, geometrik özellikler de dahil olmak üzere duvar oluşturma ve düzenleme için modern ve birleşik bir özellik paleti sunar. Bu tutarlı ve sezgisel arayüz, yeni kullanıcıların başlamasını kolaylaştırırken, deneyimli kullanıcılar farklı nesne türlerinde verimliliği artırır ve sorunsuz iş akışları sağlar. Sonuç, her proje için üretkenliği ve kullanıcı memnuniyetini artıran, düzenli bir duvar tasarım sürecidir.

Dahil Olduğu Paket: #Professional

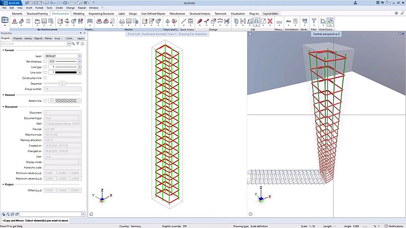
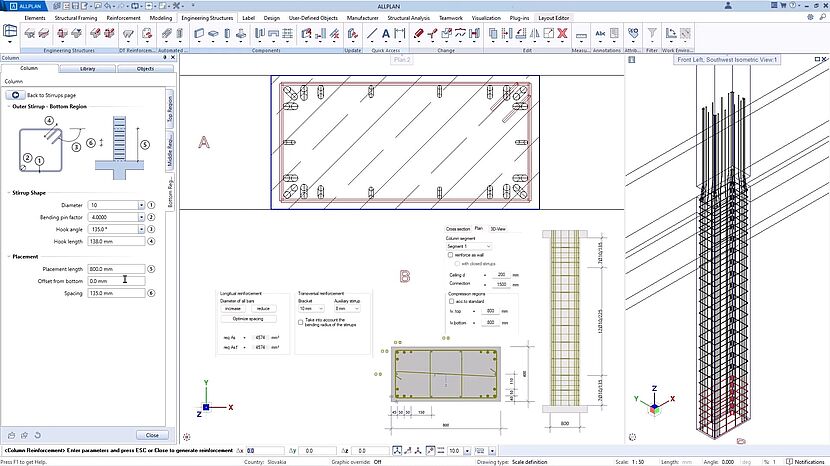
Geliştirilmiş Donatı Detaylandırması Otomatik Kolon Donatısı Tasarımı

Donatı detaylandırmasında, farklı kolon yüzeylerine farklı donatı çapları atayabilmek veya donatıyı kolon köşelerinde yoğunlaştırabilmek kritik öneme sahiptir. ALLPLAN 2026 ile kullanıcılar artık tasarım kriterlerine çok daha yakın sonuçlar elde edebiliyor: kare veya dikdörtgen kolonlarda boyuna donatılara farklı çaplar atanabiliyor ve eksenel aralıklar tanımlanabiliyor — ister köşelerde yoğunlaştırılmış, ister kullanıcı tanımlı aralıklarla. Bu sayede otomatik kolon donatı tasarımından sonra manuel düzeltme ihtiyacı büyük ölçüde azalıyor, tasarım süreci hızlanıyor ve güvenilirliği artıyor.
Ayrıca FRILO gibi analiz ve tasarım yazılımlarından donatı yerleşimlerinin aktarımı artık daha sorunsuz ve güvenilir. Bu da hatasız, kesintisiz iş akışlarını mümkün kılar.
Sonuç: daha hızlı proje teslimi, daha az hata ve analizden uygulamaya kadar tutarlı, yüksek kaliteli yapısal detaylandırma.

Dahil Olduğu Paket: #Professional

Otomatik Donatı Detaylandırması Duvar Donatısı İş Akışlarını Hızlandıran İyileştirmeler

Donatı detaylandırmasının otomatikleştirilmesi, kullanıcıların zamandan tasarruf etmesini, iş akışlarını hızlandırmasını ve daha güvenilir şekilde çalışmasını sağlar. ALLPLAN 2026, otomatik duvar donatı iş akışını daha akıcı, hatasız ve kullanıcı dostu hale getirir. Artık yatay veya dikey donatı önceliği tek tıkla belirlenebilir; her donatı tipi gerektiğinde kolayca aktif veya pasif hale getirilebilir.
Bu sayede otomasyon, hem pratik hem de sezgisel bir deneyime dönüşür. Kullanıcılar ALLPLAN’ın sunduğu hız, güvenilirlik ve kontrol avantajlarından tam anlamıyla faydalanabilir.

Dahil Olduğu Paket: #Professional

Donatıdan Şantiyeye (Reinforcement to Field) Dijital Odaklı İnşaat Süreçleri

ALLPLAN 2026, donatının modellenmesi ve yönetilmesinde devrim yaratan bir “Reinforcement to Field” (Donatıdan Şantiyeye) iş akışı sunar. Bu yeni sistem, donatılı beton yapıların tamamen dijital, çizimsiz iş akışlarıyla yönetilmesini sağlar.
Detaylandırıcılar ve yükleniciler artık donatıyı izometrik görünümler üzerinde doğrudan yerleştirebilir, geliştirilmiş nitelik yönetiminden yararlanabilir ve yoğun donatı bulunan projelerde çakışmaları etkin şekilde yönetebilir.
Bu yenilikler, detaylandırmadan sahaya kadar bilgi akışını sorunsuz hale getirir, hataları azaltır ve üretkenliği artırarak dijital inşaata geçişi hızlandırır.

Dahil Olduğu Paket: #Professional

Mühendisler İçin Benzersiz Bir İşbirliği Ortamı – Veriden 3B Modele Anında Yapısal analiz sürecini doğrudan BIMPLUS içinde görselleştirin ve yönetin

SAF dosyalarının BIMPLUS’a aktarımı artık çok daha kolay. Kullanıcılar SAF dosyalarını doğrudan içe aktarabilir ve anında 3B analitik modeli oluşturabilir.
Geliştirilmiş filtre seçenekleri sayesinde yapısal model; malzeme, kesit, yük tipi veya yük durumuna göre görüntülenebilir, böylece analiz süreci çok daha sezgisel hale gelir.

Ayrıca Excel tabanlı SAF ortamına gömülü BIMPLUS görüntüleyici, etkileşimli gezinme imkânı sunar: dosyadaki bir nesne seçildiğinde, modelde otomatik olarak vurgulanır.
Bu benzersiz entegrasyon; inceleme sürecini hızlandırır, hata tespitini kolaylaştırır ve SAF verileriyle çalışan mühendisler için güçlü bir destek sağlar.

Dahil Olduğu Paket: #Professional

FRILO Entegrasyonu FRILO ile Zahmetsiz 3B Model Aktarımı

ALLPLAN kullanıcıları artık 3B modellerini FRILO’nun BIM Connector aracılığıyla zahmetsizce aktarabilir. Bu entegrasyon, tüm FRILO modülleriyle birlikte çalışmayı her zamankinden kolay hale getirir.
Yeni iş akışı, manuel adımları ortadan kaldırır, veri alışverişini hızlandırır ve tasarım ile analiz arasında tutarlı, doğru bilgi akışı sağlar.
Sonuç olarak kullanıcılar, daha verimli, daha uyumlu ve akıcı bir mühendislik süreç deneyiminden yararlanır.

Dahil Olduğu Paket: #Professional

Bulut Tabanlı Çelik Kesit Kataloğu Her Zaman Güncel, Her Yerden Erişilebilir

Artık yapısal çelik için kapsamlı kesit kataloğuna bulut üzerinden anında erişim sağlanabiliyor. Ekipler ve iş ortakları, en güncel profillere ve standartlara tek bir kaynaktan ulaşabiliyor.
Sezgisel kullanıcı arayüzü, kesit özelliklerinin görselleştirilmesini kolaylaştırır; bu da mühendislik kararlarını hızlandırır ve projelerdeki işbirliğini güçlendirir.

Dahil Olduğu Paket: #Ultimate

Birleşik DAM (Dijital Arazi Modeli) – Yeni Nesil Arazi Modellemesi Hassas düzenlemeler, gelişmiş şekillendirme ve büyük ölçekli hafriyatlar için tek motor

Yeni Birleşik DAM (Dijital Arazi Modeli), eski sistemi modern, yüksek performanslı bir motorla değiştirerek arazi modelleme iş akışlarını daha hassas, güvenilir ve detaylı hale getiriyor.
Kullanıcılar artık tekil noktaları düzenleyebilir, kırık çizgileri (breakline) değiştirebilir ve mevcut DAM’lerden doğrudan arazi noktaları türetebilir.
Gelişmiş şekillendirme araçları, teraslar, eğimler, hendekler ve bentler gibi arazi elemanlarının hassas oluşturulmasını sağlar. Polyhedron tabanlı görselleştirme ve iki DAM arasında katı model (solid) üretimi, hacim hesaplarını ve tasarım doğrulamasını daha güvenilir hale getirir.
Bu birleşik yaklaşım, tekrarlamaları ortadan kaldırır, çakışmaları çözer ve projeler arası kararlılığı artırır. Böylece mühendisler ve mimarlar yerel düzenlemelerden büyük ölçekli zemin işlerine kadar kesintisiz çalışabilir.

Dahil Olduğu Paket: #Ultimate

Gelişmiş 3B Yol Kavşağı Detaylandırması Daha hassas düşey kontrol ve yumuşak geçişlerle düşük revizyonlu kavşak tasarımı

Yeni sürüm, parametrik yol kavşağı modellemesini daha fazla esneklik ve hassasiyetle geliştiriyor.
Tasarımcılar artık kavşak kenarlarının düşey geometrisini teğet çokgen (tangent polygon) girişiyle tanımlayabiliyor; bu sayede sol ve sağ kenar profilleri bağımsız olarak ayarlanabiliyor ve karmaşık, akıcı geçişler oluşturulabiliyor.
Bu geliştirmeler, manuel yeniden çalışmaları azaltırken daha doğru, gerçekçi kavşak modelleri üretir. Sonuç olarak, karmaşık altyapı projelerinde 3B tasarım ile 2B dokümantasyon tek bir parametrik iş akışında birleşir.

Dahil Olduğu Paket: #Ultimate

Tünel Modellemesi – Parametrik Hassasiyet Tünel projeleri için optimize edilmiş, verimli modelleme çözümü

Tünellerin üç boyutlu modellenmesi, yeraltı inşaatlarının ölçeği, karmaşıklığı ve riskleri nedeniyle modern altyapı projelerinin temel bileşenidir.
3B tünel modeli, tüm proje paydaşlarının hizalanma (alignment), kesit (cross-section), inşa ve bakım aşamalarını planlamasını, görselleştirmesini ve optimize etmesini sağlar.

Açık kazı (cut & cover) ve delme (bored) tüneller gibi farklı türler, hem yapım yöntemi hem de geometrik özellikleri açısından farklılık gösterir.
Özellikle dairesel tüneller, özel bir tasarım süreci gerektirir. ALLPLAN bu ihtiyaca yönelik olarak, parametrik bir modelleme yaklaşımı sunuyor; bu sayede 2B kesit kuralları, tünel hattı (alignment) ve inşaat metodolojisi tek bir akışta entegre edilir.
Yeni parametrik çizgiler ve otomatik sınır tanımlamaları sayesinde kullanıcılar performans artışının yanı sıra önemli ölçüde hassasiyet kazanır.

Dahil Olduğu Paket: #Civil

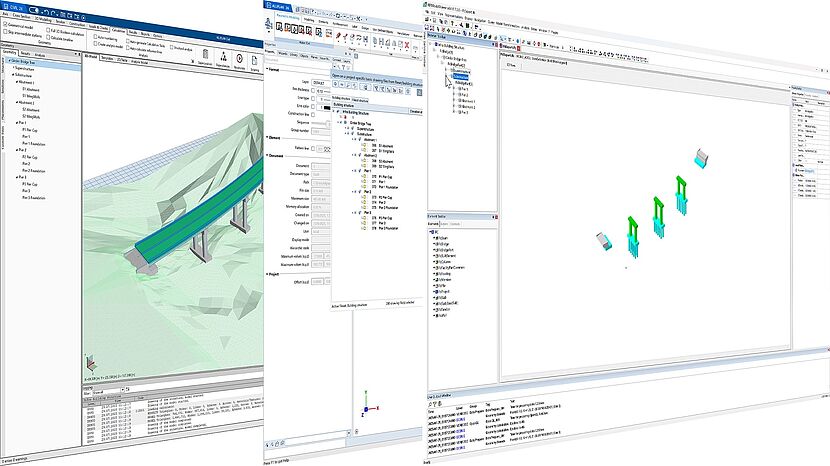
Altyapı Projeleri için Yapı Strüktürü (Building Structure) Daha hızlı, doğru ve tam koordine openBIM teslimi için merkezi proje yönetimi

ALLPLAN’ın Yapı Strüktürü sistemi artık yalnızca bina projelerinde değil, altyapı projelerinde de kullanılabiliyor.
Tüm modeller, çizimler ve dokümantasyon tek bir sezgisel yapı altında organize ediliyor. Bu merkezi yaklaşım; ekip uyumunu korur, tüm çizimlerde otomatik güncellemeleri sağlar, hataları azaltır ve teslimat sürecini hızlandırır.
Sonuç: Daha üretken ekipler, minimum risk, maksimum doğruluk ve gelişmiş openBIM iş akışları için sağlam bir temel.

Dahil Olduğu Paket: #Ultimate

BIMPLUS’a Model Aktarımı Disiplinler arası bulut tabanlı iş akışları için anında yükleme

ALLPLAN Civil artık 3B geometrik modelleri doğrudan ALLPLAN Cloud’a yüklemeyi destekliyor.
Bu sayede yol, demiryolu, köprü, tünel, arazi ve diğer altyapı verileri tek bir koordineli ortamda birleştirilebiliyor.
BIMPLUS’un açıkBIM araçları (revizyon yönetimi, sorun takibi, inceleme ve görselleştirme) sayesinde tüm paydaşlar tek ve doğru veri kaynağı üzerinden çalışır.
Bu entegrasyon, iletişimi sadeleştirir, hata oranını düşürür ve proje süreçlerini hızlandırır.
Ayrıca Nevaris gibi Nemetschek çözümleriyle veri alışverişi sorunsuzdur — bu da her ölçekte projede üretkenliği ve işbirliğini artırır.

Dahil Olduğu Paket: #Civil

3B Katman Yönetimi Karmaşık 3B modelleri üstün hassasiyetle düzenleyin, kontrol edin ve yönetin

ALLPLAN Civil 2026, 3B modeller için gelişmiş katman yönetimi sunuyor. Bu sayede altyapı profesyonelleri, model organizasyonunu, görünürlüğü ve verimliliği çok daha etkin şekilde kontrol edebiliyor.
Kullanıcılar; köprü, yol, tünel, arazi gibi model elemanlarını belirli katmanlara atayabilir, disiplin, proje aşaması veya sistem bazında düzenleme yapabilir.
Katmanlar kolayca gösterilebilir, gizlenebilir veya izole edilerek odaklı düzenleme yapılabilir. Bu, hataları azaltır ve tasarım sürecini hızlandırır.
Küresel özellik ayarları görsel tutarlılığı korur; çok disiplinli ekipler paralel olarak daha az çakışma ile çalışabilir.
Bu güçlü özellik, karmaşık altyapı projelerinde yeni bir verimlilik ve doğruluk standardı getirir.

Dahil Olduğu Paket: #Ultimate

Gelişmiş Parametrik Kesit Modellemesi Daha hızlı, daha doğru ve tam koordine altyapı tasarımı için geliştirilmiş araçlar

ALLPLAN Civil’deki 2B parametrik kesitler, akıllı ve veri odaklı modellerin temelini oluşturur.
Yeni sürüm, karmaşık altyapı bileşenlerinin oluşturulması ve düzenlenmesinde daha fazla esneklik ve verimlilik sağlar.
Yapılan değişiklikler tüm modelde otomatik olarak güncellenir.
Bu geliştirmeler, modelleme hızını artırır, doğruluğu güçlendirir ve tekrarlayan işleri azaltarak tasarımdan inşaata geçişi kolaylaştırır.

Dahil Olduğu Paket: #Civil

FEM – Hacim Elemanları – Teknik Önizleme Daha yüksek hassasiyet ve esneklik için 3B hacim elemanlarıyla genişletilmiş analiz

ALLPLAN Civil’in entegre yapısal analiz modülü artık kiriş ve ızgara modellerinin ötesine geçerek hacim elemanlarını (volume elements) destekliyor.
Bu teknik önizleme, karmaşık geometrilerin, yerel etkilerin ve ayrıntılı gerilme dağılımlarının simülasyonuna olanak tanır.
Köprü ayakları, mesnetler ve temeller gibi alt yapı elemanlarının rijitliği, artık küresel model içinde dikkate alınabilir.
Üstyapı–altyapı etkileşiminin daha doğru simülasyonu sayesinde analiz hassasiyeti ve modelleme esnekliği artar; gelecekteki sürümler için daha gelişmiş analizlerin yolunu açar.

Dahil Olduğu Paket: #Civil

Prefabrik Kirişli Köprü İş Akışının Genişletilmesi Parametrik köprü tasarımında daha fazla güvenlik, hassasiyet ve otomasyon

ALLPLAN’ın prefabrik kirişli köprü çözümü, parametrik modelleme, gelişmiş yapısal analiz ve EN / AASHTO LRFD 9 standartlarına uygun detaylandırmayı birleştirerek tasarımdan inşaata kadar süreci %70’e varan oranda hızlandırır.
Parametrik kiriş elemanları, modüler 3B şablonlar ve kesintisiz BIM işbirliği sayesinde mühendisler eksenleri, kesitleri ve bileşenleri esnek parametrelerle hızla tanımlayabilir.
Yeni geliştirmeler şunları içerir:

• Depolama ve taşıma sırasında öngerilmeli kirişlerin yanal stabilite analizi
• Enine donatı tasarımı için otomatik ızgara (grillage) üretiminde iyileştirmeler
• Geliştirilmiş kod kontrolü ve doğrulama araçları.

Bu iyileştirmeler, modern prefabrik köprü projelerinde güvenliği, doğruluğu ve verimliliği önemli ölçüde artırır.

Dahil Olduğu Paket: #Ultimate

Temel İşleri İyileştirmeleri Karmaşık inşaat modelleri için daha akıllı yönetim

Planlamadan teslimata kadar, karmaşık inşaat modellerinin yönetimi her proje aşamasında kritik öneme sahiptir. Kazı çukuru modelleri ve istinat duvarları gibi temel unsurlar doğruluk ve güvenilir sonuçlar açısından hayati rol oynar. Ancak projeler büyüdükçe, manuel iş akışları ilerlemeyi yavaşlatabilir ve hata riskini artırabilir.

ALLPLAN 2026, bu temel süreçlerde önemli geliştirmeler sunuyor. Geliştirilmiş operator management özelliği sayesinde ekipler kazı çukuru operatörlerini verimli bir şekilde etkinleştirebilir veya devre dışı bırakabilir, operatör hacimlerini palet üzerinden görselleştirebilir ve modelleme süreci boyunca tam kontrol sağlayabilir.
İyileştirilmiş çelik kazık duvar (sheet pile wall) iş akışı, köşe tanımlamasını kolaylaştırarak karmaşık geometrilerde daha yüksek hassasiyet sağlar. Ayrıca, istinat duvarı önizlemelerindeki performans iyileştirmeleri modellemeyi daha hızlı ve sezgisel hale getirir.

Bu geliştirmeler, karmaşık inşaat modeli yönetimini sadeleştirir, hataları azaltır ve proje teslimatını hızlandırır — böylece ekibiniz zorlu projelerde bile üstün sonuçlar elde eder.

Dahil Olduğu Paket: #Professional

Kural Tabanlı Ölçülendirme
(Rule-based Dimensioning) Kural tabanlı ölçülerle daha hızlı çizim üretimi

Her görünümü tek tek elle ölçülendirmekten sıkıldınız mı?
ALLPLAN 2026 artık üretim standartlarına dayalı ölçülendirmeyi otomatikleştiriyor — böylece her prefabrik eleman tam olarak gereken ölçülere anında ve tutarlı biçimde sahip oluyor.

Kural tabanlı ölçülendirme, kullanıcıların üretim ihtiyaçlarına göre belirli görünüm veya kesitlerde özel ölçülendirmeler oluşturmasına olanak tanır. Planlamacılar, makro verisine sahip herhangi bir 3B obje için herhangi bir görünüm veya kesitte geçerli olacak kurallar tanımlayabilir.
Bu esneklik, iş akışlarını optimize etmeyi ve ölçülendirmeyi üretim sürecinin tam gereksinimlerine uyarlamayı mümkün kılar.

Dahil Olduğu Paket: #Professional

Yerel Görünümler için Otomatik Ölçülendirme
(Automated Dimensioning for Local Views) Yerel görünümler için mükemmel netlik ve kararlılık

Doğru temsil, değişikliklere rağmen tutarlılık ve otomatik ya da kullanıcı kontrollü referanslama kabiliyeti — bunlar dokümantasyon ve görselleştirmede netlik ve hassasiyet için esastır.
Bu özellikler hataları azaltırken esnekliği ve kontrolü korur.

ALLPLAN’daki yerel görünümler, modele yaptığınız değişiklikler ne olursa olsun elemanlarınıza sabitlenmiş şekilde kalır. Böylece atölye çizimleriniz her zaman doğru, hizalı ve net olur — kaç düzenleme veya bölünme yaparsanız yapın.

Dahil Olduğu Paket: #Professional

Yeni Bağlantı Paleti Güncellemesi (New Connection Palette Update) Daha hızlı ve hassas prefabrik iş akışları için üretime hazır, sadeleştirilmiş araç

ALLPLAN 2026’daki güncellenmiş Bağlantı Paleti (Connection Palette), prefabrik üretim süreçlerini önemli ölçüde hızlandırır.
ALLPLAN’in özellik yönetim altyapısı (property framework) ile tam entegrasyon sayesinde, tüm prefabrik bileşenlerde daha yüksek performans ve tutarlı bir kullanıcı deneyimi sunar.
Duvar elemanlarından ayrıştırılması sayesinde gereksiz gezinme adımları ortadan kalkar, bağlantı ayarlarına erişim ve düzenleme işlemleri çok daha kolay hale gelir.

Artık bağımsız bir araç olan Bağlantı Paleti, kullanıcıların çift duvarlar, masif duvarlar gibi farklı duvar tipleri arasındaki birleşimleri verimli biçimde oluşturmasına, düzenlemesine ve hizalamasına imkân tanır.
Model içinde doğrudan nesne düzenleme (direct object modification) desteği, bağlantıların model üzerinde anında ve görsel geri bildirimle değiştirilmesini sağlar; bu da daha hızlı ve hassas düzenlemeler yapılmasına olanak verir.

Sistem ayrıca otomatik duvar yüksekliği ayarlamalarını destekler ve kalıp ayırma (formwork release) ile bağlantı halkaları (connection loops) gibi üretim detaylarını sorunsuz biçimde entegre eder.
Sonuç olarak, üretim ihtiyaçlarına tam uyumlu, optimize edilmiş bir prefabrik tasarım ve üretim süreci elde edilir.

Dahil Olduğu Paket: #Precast

Filigran Döşemeler için Ortak Çözüm (Common Solution for Filigree Slabs) Üretime optimize edilmiş döşeme tasarımlarını otomatikleştirin

ALLPLAN artık filigran (yarı prefabrik) döşemelerdeki donatı ve bağlantı elemanlarını otomatik olarak yerleştirir ve günceller — böylece tasarımınızda her değişiklik yaptığınızda düzeni baştan oluşturmanız gerekmez.

Bu yenilik sayesinde üretim planlaması çok daha hızlı, verimli ve zahmetsiz hale gelir.

Dahil Olduğu Paket: #Precast

Gizli Donatıda Görselleştirme (Reinforcement in Hidden) Son derece net donatı planları oluşturun

ALLPLAN 2026, plan oluşturma sırasında gizli donatı kategorilerini tamamen devre dışı bırakmaya olanak tanıyan yeni bir otomatik işlev sunar.

Bu sayede mühendisler ve mimarlar, çizimlerde görünür ve gömülü donatıları açıkça ayırt edebilir. Böylece saha ekiplerinin planları anlaması kolaylaşır, denetçiler onay süreçlerini hızla tamamlar ve ekipleriniz sahada maliyetli hatalardan kaçınır.

Bu yenilik, taşan (çıkan) donatıları gömülü donatılardan etkin biçimde ayırarak yapısal elemanlarda çok daha net bir görselleştirme sağlar.

Dahil Olduğu Paket: #Precast

Özelleştirilebilir Metraj
(Customizable Quantity Take-off) Doğru malzeme metrajlarını anında oluşturun

İhtiyacınız olan verileri, ERP sisteminizin veya müşterinizin istediği formatta tam olarak dışa aktarın. Kurallarınızı bir kez tanımlayın ve her projede tutarlı, güvenilir miktar verileri elde edin — artık çift veri girişi ya da karmaşık geçici çözümler gerekmez.

Dahil Olduğu Paket: #Professional

Parça Numaralandırma
(Mark Numbering) Parça numaralarını anında atayın, doğrulayın ve toplu olarak yönetin

Tek bir entegre sistemle, geometri, donatı veya bağlantı elemanları açısından eşleşen elemanları hızla tanımlayın. Bu hassasiyet, daha verimli gruplama, kalıp israfının azaltılması ve tüm prefabrik üretim sürecinizin daha akıcı hale gelmesi için büyük kolaylık sağlar.

ALLPLAN 2026

Bilgi Modelleme, Yönetim,

Birlikte Çalışabilirlik ve İş Birliği İş Akışları

ALLPLAN Cloud ve Genel Geliştirmeler

Herkes için geliştirilmiş özellikler ve iyileştirmeler

Smart Catalog’dan Katalog Kullanımının Kolaylaştırılması

Tasarımcılar, verimli ve doğru malzeme miktarını çıkarma ve tercih ettikleri çözümlerle sorunsuz entegrasyon sağlayan bir araç ister.

ALLPLAN’ın Smart Catalog Editor’ü, malzeme ve bilgi veritabanlarını yönetmek için kullanıcı dostu, entegre ve dünya genelinde uygulanabilir bir platform sunar.

ALLPLAN 2026, Smart Catalog’un kullanıcı dostu ve erişilebilirliğini geliştirir; doğru malzemeleri bulmayı ve seçmeyi daha kolay hale getirir.

  • İteratif arama

  • Genişletilebilir veya daraltılabilir katalog bölümleri

gibi yeni özellikler, malzeme veritabanlarında gezinirken verimliliği önemli ölçüde artırır.

Smart Catalog’dan Katalog Kullanımının Kolaylaştırılması

Tasarımcılar, verimli ve doğru malzeme miktarını çıkarma ve tercih ettikleri çözümlerle sorunsuz entegrasyon sağlayan bir araç ister.

ALLPLAN’ın Smart Catalog Editor’ü, malzeme ve bilgi veritabanlarını yönetmek için kullanıcı dostu, entegre ve dünya genelinde uygulanabilir bir platform sunar.

ALLPLAN 2026, Smart Catalog’un kullanıcı dostu ve erişilebilirliğini geliştirir; doğru malzemeleri bulmayı ve seçmeyi daha kolay hale getirir.

  • İteratif arama

  • Genişletilebilir veya daraltılabilir katalog bölümleri

gibi yeni özellikler, malzeme veritabanlarında gezinirken verimliliği önemli ölçüde artırır.

Dairesel Donatı için Hassas Detaylandırma (Precision Detailing for Circular Reinforcement)

Her şekil ve birim için doğru modelleme: ALLPLAN 2026, karmaşık dairesel ve spiral yapılarda donatı detaylandırmasına geliştirilmiş hassasiyet getiriyor.

  • Güncellenmiş dairesel donatı yetenekleri sayesinde, tüm parametre değerleri — yarıçap ve çubuk çapı dahil — tam doğrulukla kaydedilir ve korunur.

  • Özellikle imperial birimlerle çalışırken, kesirli inç ölçüleri dahi tamamen düzenlenebilir ve tutarlı kalır.

Sonuç: tasarımdan üretime kadar daha güvenilir detaylandırma ve yüksek güven.

Bağlantılı Yüzey Donatısı – Daha Fazla İyileştirme (Linked Surface Reinforcement – Further Improvement)

ALLPLAN’da ekip çalışması artık daha sorunsuz.

  • Otomatik Donatı Güncellemeleri (AUTOMATIC REINFORCEMENT UPDATES) sayesinde, 3B objelerde yapılan değişiklikler bağlı donatıyı anında günceller

  • Model değiştirmeye veya manuel güncelleme yapmaya gerek yok

Sonuç: daha hızlı, hatasız koordinasyon ve kesintisiz iş akışları, tümü ALLPLAN içinde.

Hızlı ve Güvenilir Performans Deneyimi (Experience Fast, Reliable Performance)

ALLPLAN 2026, genel performansı artırarak her şeyi hızlandırır — model yüklemeden çizim güncellemelerine kadar.

  • Bekleme süresi azalır

  • Daha fazla zaman detaylandırma, koordinasyon ve çizimlerin tamamlanması için kullanılır

Boşluklar için Hazırlık – Karmaşık Projelerde Performans Optimizasyonu (Provision for Voids – Performance Optimization for Complex Projects)

ALLPLAN 2026’daki Boşluklar için Hazırlık (Provision for Void) – duvar açıklıkları, önemli performans iyileştirmeleri sunar.

  • Tasarımcıların en karmaşık projelerde bile boşlukları verimli ve otomatik olarak oluşturmasını sağlar

  • Bu geliştirmeler, tasarım süreçlerini hızlandırır ve daha akıcı, üretken BIM modellemesini destekler

Tavan Sistemleri – Düzen ve Şekil Optimizasyonu (Ceiling Systems – Layout and Shape Optimization)

ALLPLAN 2026’daki Tavan Sistemi İyileştirmeleri, tavan planlarını daha net ve verimli hale getirir.

  • Her tavan elemanına farklı 2B yüzler atanabilir, böylece kolay ayrım sağlanır

  • Özel format ayarlarıyla daha net kesit görüntüleri elde edilir

  • Oda sınırları değiştiğinde güncelleme düğmesi ile tavan sistemi şekil değişikliğine uyum sağlar

Sonuç: iş akışları hızlanır ve hata riski azalır

IFC4 İçe Aktarma Geliştirmeleri (IFC4 Import Enhancements)

ALLPLAN 2026, openBIM iş birliğini önemli IFC4 içe aktarma iyileştirmeleriyle ilerletiyor.

  • Çok katmanlı döşeme desteği genişletildi

  • IFC4 standartlarına uyum güncellendi, böylece daha kaliteli ve güvenilir veri sağlanıyor

Bu geliştirmeler, diğer BIM platformlarıyla interoperabiliteyi güçlendirir, AEC ekiplerine karma yazılım ortamlarında daha fazla güven ve esneklik sunar.

Sonuç: daha sorunsuz veri alışverişi, daha doğru modeller ve ALLPLAN’ın openBIM iş akışlarındaki liderliği pekişir

Bağlam Menüsü Kullanımı (Context Menu Handling)

ALLPLAN 2026, geliştirilmiş bir bağlam menüsü sunar ve temel araçlara daha kolay erişim ve kullanım sağlar.

  • Komutları hızlıca bulmayı kolaylaştırır

  • Yeni kullanıcılar için öğrenme süresini kısaltır

  • Her proje için genel verimliliği artırır

İçerik Bağlayıcı Geliştirmeleri – Daha Fazla İyileştirme (Content Connector Enhancements – Further Improvements)

ALLPLAN 2026’daki Content Connector, üçüncü tarafların yeni sağlayıcıları ALLEP paketi ile sorunsuz şekilde entegre etmesine olanak tanır.

  • 3D Warehouse iş akışı için SKP kaynak dosyasını saklamaya gerek yok

  • Bir PythonPart objesi oluşturulduğunda, içerik doğrudan eklenir

Bu geliştirmeler:

  • İçerik kütüphanenizi kolayca genişletmeyi

  • Ortaklar için esnekliği artırmayı

  • Tüm kullanıcılar için proje iş akışlarını hızlandırmayı sağlar

PythonPart Paleti Geliştirmeleri (PythonPart Palette Enhancements)

ALLPLAN 2026, tamamen yeniden tasarlanmış bir PythonPart paleti sunar ve performans ile işlevsellik açısından büyük iyileştirmeler getirir.

  • Daha iyi organizasyon için iç içe genişleticiler (nested expanders)

  • Daha net görselleştirme için resim boyutlandırma

  • Tam karanlık mod desteği ile modern ve konforlu kullanıcı deneyimi

Bu geliştirmeler, PythonPart yönetimini daha hızlı ve kolay hale getirir, verimliliği artırır ve her proje için daha sezgisel bir iş akışı sunar

Altyapı: Paralel Eksen ve Parametrik Kavşak Oluşturma (Civil: Parallel Axis & Parametric Roundabout Creation)

Gelişmiş Yol ve Demiryolu Modelleme Temelleri: Yeni sürüm, dairesel eksen geometrisi ve paralel yatay eksenler ekleyerek, parametrik altyapı tasarımı için daha geniş olanaklar sunar.

  • Kullanıcılar artık tam parametrik kavşak modellemesi için kapalı hizalamalar oluşturabilir

  • Kullanıcı tanımlı offsetlerde paralel eksenler oluşturulabilir, bunlar doğrular, yaylar, klotoid ve bloss elemanları ile tam geometrik tutarlılık sağlar

  • Tüm ayarlar Axis Manager üzerinden yönetilir, böylece eksenlerin oluşturulması ve kontrolü verimli hale gelir

Bu birleşik parametrik iş akışı, gelişmiş çok eksenli yol, demiryolu ve kavşak tasarımı için sağlam bir temel oluşturur

Altyapı: Gelişmiş Otomasyon ve İş Birliği (Civil: Advanced Automation & Collaboration)

Daha hızlı, daha doğru ve tutarlı tasarım için parametrik yerleştirme ve otomatik güncellemeler:

  • ALLPLAN’daki parametrik nesne yerleştirme, proje elemanlarının model üzerinde dinamik ve sezgisel olarak ayarlanmasına imkan tanır

  • Visual Scripting ile oluşturulan PythonPart’lar, manuel kodlama gerektirmeden eklenebilir ve yönetilebilir

  • Tüm nesneler, parametreler değiştikçe otomatik olarak güncellenir

Bu yaklaşım, esneklik ile standartlaştırmayı birleştirir, karmaşık şablonları destekler, tekrarlayan işleri azaltır ve her ölçekte projede doğruluk, tutarlılık ve verimliliği artırır

Altyapı: Hollanda ve Belçika Ekleri ile Kod Tabanlı Tasarım (Civil: Dutch & Belgian Annexes for Code‑Based Design)

Hızlı ve tam uyumlu köprü tasarımı için ulusal standartların sorunsuz entegrasyonu:

  • ALLPLAN Bridge’in kod tabanlı tasarım modülünün en son güncellemesi, Hollanda ve Belçika ulusal eklerini entegre eder

  • Ülkeye özel limit durumlar, değerler, hesaplama yöntemleri ve doğrulama prosedürleri, iş akışına doğrudan dahil edilir

  • Uyum kontrolleri otomatikleştirilir ve hesap raporlarında ek hükümler referans alınır, böylece manuel yorumlama ihtiyacı ortadan kalkar

  • Risk azalır, doğrulama süresi kısalır ve pazar süresi hızlanır

  • Sonuç: daha verimli, uyumlu ve ölçeklenebilir iş akışlarıyla kârlılık artışı

Altyapı: Hindistan Tasarım Kodu ile Küresel Analiz (Civil: Indian Design Code for Global Analysis)

Hindistan ve diğer bölgelerde doğru ve uyumlu köprü tasarımı için tam IRC standardı desteği:

  • ALLPLAN Civil’in entegre yapısal analiz modülü, tam kod uyumlu küresel köprü analizini destekler

  • Sürünme, büzülme ve ön gerilmeli rahatlama gibi zaman bağımlı etkiler dikkate alınır

  • Son güncelleme, Indian Roads Congress (IRC) standartları için tam destek ekler

  • Mühendisler, karmaşık geometriler ve aşamalı inşaat senaryolarını IRC gerekliliklerine tam uyumlu olarak modelleyebilir

  • Bu geliştirme sayesinde ALLPLAN, daha geniş uluslararası projeleri destekler ve mühendislerin farklı düzenleyici ortamlar arasında güvenli ve tutarlı kod uyumlu analiz yapmasını sağlar

Birleşik Proje Alanı – Sınır Tanımayan İş Birliği (Unified Project Space – Collaborate Without Limits)

Tüm çizimlerinizi, sorunsuz iş birliği için tasarlanmış tek bir paylaşılan ortamda bir araya getirin.

  • Geliştirilmiş dokümantasyon iş akışları, 2D çizimleri ALLPLAN’dan doğrudan merkezi proje alanına aktarmanıza olanak tanır

  • Tüm ekip aynı sayfada kalır, koordinasyon daha akıcı hale gelir

  • Sonuç: daha hızlı karar alma, daha az hata, daha yüksek verimlilik

  • Proje teslimi daha sorunsuz ve verimli gerçekleşir

Geliştirilmiş İş Birliği için Yeni Arayüzler (New Interfaces for Enhanced Collaboration)
  • IFC 4.3 ve SketchUp 2024 modellerini içe aktarabilir, GLB formatına dışa aktarabilirsiniz

  • BIMPLUS, yeni arayüz desteği ile artırılmış birlikte çalışabilirlik sunar

  • Kullanıcılar, en güncel endüstri standartlarıyla uyumlu dosyaları içe aktarabilir

  • GLB dışa aaktarımı, hem BIM Portal hem de BIM Explorer üzerinden mümkün olup, veri alışverişi ve görselleştirmeyi platformlar arasında sorunsuz hale getirir