Subscription 2026

Şimdi Aboneliğe Geçmek
Uzun Vadeli Akıllı Bir Yatırımdır

ALLPLAN 2026

DAHA İYİ BİR GELECEK İNŞA ETMEK İÇİN TASARLANDI

ALLPLAN 2026 ile Yeni Özellikler – ALLPLAN Cloud ve Genel Geliştirmeler

Genel Ana Özellikler ve
Tüm Kullanıcılar için Geliştirmeler

Dahil Olduğu Paket: #Concept

Çok Harfli Klavye Kısayolları Desteği
(Multi-letter Keyboard Shortcuts Support)
Daha hızlı komutlar ve daha akıllı iş akışları
parmaklarınızın ucunda

LLPLAN 2026, son derece esnek ve özelleştirilebilir bir kısayol sistemi sunar; bu sistem, sektördeki standartlarla eşleşir veya onları aşar ve kullanıcıların kısayol odaklı, ultra verimli iş akışları oluşturmasını sağlar.

Bu iyileştirmeler sayesinde, kullanıcılar herhangi bir araca veya komuta saniyeler içinde erişebilir, günlük üretkenlikte önemli bir artış sağlar.

Dahil Olduğu Paket: #Professional

Yeni Grafik Geçersiz Kılma (New Graphic Override)

Daha hızlı ve yaratıcı BIM iş akışları için görsel kuralları zahmetsizce uygulayın

ALLPLAN 2026’daki Yeni Graphic Override özelliği, planlayıcılara çizim ve modellerin görünümünü anında kontrol etme olanağı sağlar.

  • Renkler, dolgular, çizgi tipleri, desenler ve diğer özellikler için kurallar, bireysel eleman niteliklerini değiştirmeden Graphic Override Manager üzerinden kolayca tanımlanabilir.

  • Grafik geçersiz kılma setleri, inşaat veya düzenleme modunda anında uygulanabilir, böylece tasarımınızı hızlıca görselleştirebilir, kontrol edebilir ve paylaşabilirsiniz.

Bu esnek, kural tabanlı yaklaşım, plan üretimini hızlandırır, zamandan tasarruf sağlar ve daha verimli ve yaratıcı BIM iş akışlarına olanak tanır.

Dahil Olduğu Paket: #Basic

Introducing Dark Mode
Effortless comfort and clarity—whatever the lighting

With rising expectations for a modern, comfortable workspace, users need flexible interface options to stay productive—day or night. ALLPLAN 2026 introduces a brand-new dark mode and a refreshed light mode, enhancing comfort and productivity, especially during intense or prolonged modeling sessions. 

Users can switch seamlessly between dark or light mode to reduce eye strain, boost accessibility, and even save battery on OLED screens, ensuring a customizable, future-ready ALLPLAN experience—all in one intuitive interface. 

Dahil Olduğu Kapsam: #Temel

Geliştirilmiş Çakışma Yönetimi
(Enhanced Clash Management)

Daha iyi proje koordinasyonu için kolay çakışma tespiti ve hızlı çözüm

ALLPLAN 2026, 3B modeldeki farklı elemanlar arasındaki çakışmaları tespit etme ve çözme sürecini kolaylaştırır.

Geliştirilmiş Çakışma Yönetimi ile ALLPLAN artık şunları sunar:

  • Niteliklerle dolu bilgilendirici çakışma makroları

  • Gelişmiş çakışma filtreleri

  • Mevcut çakışmaları güncelleme yeteneği

Ekipler, koordinasyon üzerinde tam kontrol sahibi olabilir. Yenilikler ayrıca:

  • Sert ve yumuşak çakışmaların (boşluklar dahil) hedeflenmiş filtrelerle kolayca kontrol edilmesini

  • Çakışma makrolarının bilgi paletine anında aktarılabilmesini sağlar

Sonuç: daha az maliyetli yeniden işleme, daha yüksek kaliteli yapılar ve daha uzun ömürlü projeler, tüm bunlar ALLPLAN’da daha akıcı inşaat süreçleri ile gerçekleştirilir.

Dahil Olduğu Kapsam: #Kavramsal

Geliştirilmiş Bilgi Paleti
(Enhanced Information Palette) Daha akıllı ve hızlı proje yönetimi için kolay organizasyon ve kontrol

ALLPLAN 2026, tamamen yenilenmiş bir Bilgi Paleti sunar. Bu yeni sürüm, gelişmiş özellikler içerir:

  • - Esnek gruplama
  • - Otomatik toplam hesaplama
  • - IDS doğrulama
  • - Katalog entegrasyonu
  • - İyileştirilmiş gezinme
  • - Gelişmiş sıralama ve filtreleme
  • - Daha sezgisel bir kullanıcı deneyimi için yeniden tasarlanmış arayüz
  • - Akıcı iş akışları için performans optimizasyonları

Bu güçlü araçlar sayesinde kullanıcılar, bilgileri hızlıca organize edebilir, bulabilir ve güncelleyebilir, böylece arama süresini azaltır ve verimliliği artırır. Sonuç: daha güvenilir planlama, daha hızlı proje teslimi ve yaratıcı işlere daha fazla zaman.

Dahil Olduğu Paket: #Professional

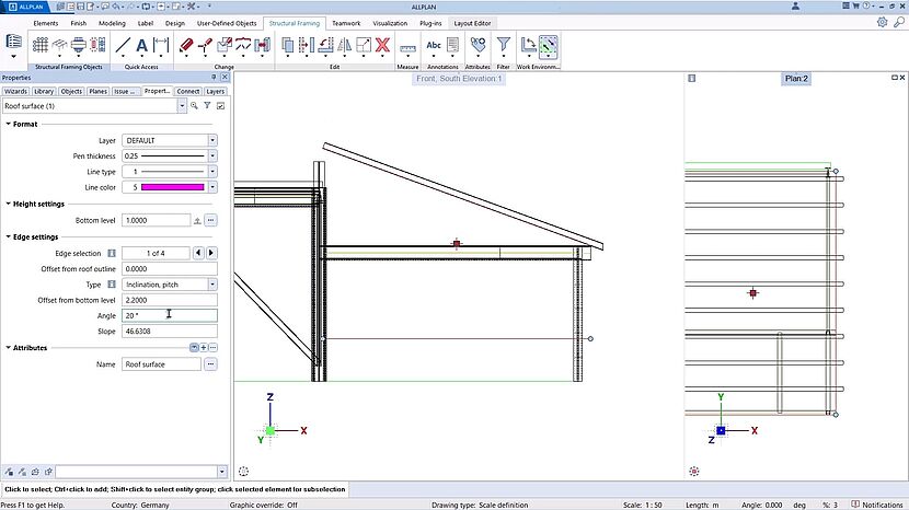
Geliştirilmiş Yapısal Çerçeveleme
(Improved Structural Framing)

Çerçeveleme düzenlerini hızlıca modelleyin ve güncelleyin

Yeni kiriş ve çıta yerleştirme araçları, önceden tasarlanmış binaları daha hızlı modellemenizi ve çerçeveleme düzenlerini çatı geometrisi değiştikçe kolayca uyarlamanızı sağlar.

Geliştirilmiş hizalama seçenekleri, çelik elemanların ilk seferde doğru yerleştirilmesini sağlayarak bağlantı hatalarını azaltır.

Dahil Olduğu Paket: #Professional

Yapısal Çerçeveleme Montajları
(Structural Framing Assemblies)

Bağlantıları otomatik olarak doğru tutun

ALLPLAN 2026, bağlantı hatalarını düzeltmek için harcanan zamanı ortadan kaldırır. Yeni işlevsellik sayesinde bağlantılar otomatik olarak uygulanır ve güncellenir, böylece çelik montajlar tasarım değişiklikleri sırasında her zaman doğru ve geçerli kalır.

ALLPLAN Cloud

Dahil Olduğu Paket: #Concept

Yapay Zeka Asistanı (AI Assistant)

AEC Yenilikleri için Uzman Yol Arkadaşınız

Connect platformu üzerinden sunulan AI Assistant, ALLPLAN yazılım çözümleri (ALLPLAN, SCIA, FRILO, SDS2 ve BIMPLUS) ile çalışma şeklinizi dönüştürmek için tasarlanmış yenilikçi bir araçtır. Mimarlık, mühendislik, üretim ve iş birliği alanlarında uzmanlığı ile, bu akıllı asistan platformun tüm alanlarında kapsamlı destek sağlar.

ALLPLAN’a özgü konuların ötesinde, AI Assistant geniş AEC endüstri standartları ve en iyi uygulamalar hakkında da değerli bir kaynak sunar; süreçleri hızlandırmanıza ve bilinçli kararlar almanıza yardımcı olur.

  • İnşaat standartlarıyla ilgili rehberlik

  • Oda planlaması için akıllı öneriler

  • Projeleriniz için detaylı kod uzantıları geliştirme desteği

gibi ihtiyaçlarınızda pratik çözümler sağlar. 7/24 erişilebilir ve birden fazla dilde kullanılabilir, böylece uzman desteğine her zaman ulaşabilirsiniz.

AI Assistant, abonelikli müşteriler için önizleme sürümü olarak sunulacaktır. Bu sadece bir araç değil; AEC iş akışlarınızda verimliliği artıran ve yeni olanaklar açan güvenilir bir iş ortağıdır.

Dahil Olduğu Paket: #Concept

Kaplamalar – 2D Belge Kırpma
(Overlays - 2D Document Clipping)

3B koordinasyon için daha net ve hızlı odaklanma – 2B düzenlerde önemli detaylara kolayca odaklanın

ALLPLAN’daki yeni kırpma kutusu özelliği, kullanıcıların 2B düzenleri 3B modellerle birleştirirken yalnızca ihtiyaç duydukları içeriği izole etmesini sağlar.

  • 2B düzen içinde görünür alanı doğrudan tanımlayıp ayarlayabilir

  • İlgisiz görünümler, başlıklar veya ekstra bilgiler dışlanabilir

  • Yalnızca temel detaylar gösterilir

Sezgisel boyutlandırma ve Geri Al / Yinele (Undo/Redo) işlevleri sayesinde:

  • İncelemeler hızlanır

  • Görsel karmaşa azalır

  • Netlik artar

Bu özellik, mimarlar ve mühendisler için koordinasyonu hızlandırır, iletişimi daha açık hale getirir ve sunumları daha etkili kılar.

ALLPLAN Model Görüntüleyici (ALLPLAN Model Viewer) – Ücretsiz, Hızlı ve Her Yerden Erişilebilir

Tarayıcınızda anında model görselleştirme

Ücretsiz ve bağımsız Model Viewer, herkese tarayıcı tabanlı IFC görselleştirme olanağı sunar.

  • modelviewer.allplan.com üzerinden erişilebilir

  • Modelleri hızlıca önizleyebilir ve etkileşimde bulunabilirsiniz

Dahil Olduğu Paket: #SCIA Engineer

Daha Akıllı İş Birliği – SCIA Engineer için Geliştirilmiş Model Yönetimi ve Takım Çalışması Mühendislik ekiplerinin tasarımları koordine etmesi ve ilerlemeyi paylaşması için daha akıllı bir yöntem

SCIA Engineer’daki en son geliştirmelerle, ekipler artık tek bir paylaşılan yapısal model üzerinden iş birliği yapabilir.

  • Mühendisler değişiklikleri izleyebilir

  • Disiplinler arası daha verimli koordinasyon sağlanır

  • Herkes en güncel tasarım verisiyle çalışır

Bu bağlı iş akışı, hataları azaltır, proje teslimatını hızlandırır ve ekiplerin müşterilere daha iyi sonuçlar sunmaya odaklanmasını sağlar.

Dahil Olduğu Kapsam: #Kavramsal

ALLPLAN-Bluebeam Bağlantı Uzantısı
(Extension ALLPLAN-Bluebeam Connection)
2B ve 3B belgelerin dijital aktarımı için stabil iş akışı

Bluebeam ve ALLPLAN, kullanıcılarına iş birliğine dayalı araçlar sunar. ALLPLAN 2026 sürümü, iki araç arasında güçlü bir iş akışı sunarak, kullanıcıların Bluebeam Studio Project ortamındaki belgeleri kolayca ALLPLAN iş akışlarına dahil etmesini sağlar.

  • Bu özellik, kullanıcıya farklı proje aşamalarında teslimatlar için dijital bir ortam sağlar

  • 3B ve 2B verilerin senkronizasyonu ve proje paydaşlarıyla veri değişimi mümkün olur

Artık Bluebeam EU Server için kullanılabilir.

ALLPLAN

DAHA İYİ BİR GELECEK İNŞA ETMEK İÇİN TASARLANDI

Daha üretken, iş birliğine dayalı ve gelişmiş iş akışları

ALLPLAN’ı Ücretsiz Deneyin

 

  • Tek bir platformda disiplinler arası AEC ekip çalışması

  • Malzeme ve inşaat yöntemlerinin üstün koordinasyonu

  • Gelişmiş BIM iş akışları ve gerçek zamanlı iş birliği

ALLPLAN’ın tam sürümünü 14 gün boyunca ücretsiz ve taahhütsüz olarak deneyin. Yazılımı indirmeniz yeterli; tüm avantajları kendiniz keşfedin.

© 2025 Aluplan Program Sistemleri. All rights reserved.